DE SALAS LUXURY HOMES Ref. MAV02798, les presenta uno de los áticos más impresionantes de la zona de Chamberí, con terraza perimetral en esquina y unas vistas inigualables.
El lujo y el confort se unen en este precioso ático dúplex, de enormes espacios, en el que cada rincón tiene su pequeña historia decorativa.
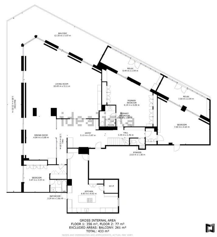
PLANTA PRINCIPAL- El hall de entrada nos da la bienvenida invitándonos a entrar en su salón distribuido en varios espacios y con salida a la terraza donde también podemos escoger el lugar más cómodo para disfrutar de las vistas.
El comedor independiente alberga una gran mesa para celebrar grandes reuniones en familia o celebraciones con amigos.
La cocina dispone de isla central para cocinar y zona de office para comer a diario. Además, cuenta con un gran número de armarios para almacenaje. Destacan sus electrodomésticos de alta gama, que hace de esta cocina, el lugar ideal para los amantes del arte culinario.
Todos los dormitorios tienen su propio cuarto de baño integrado y salida a la terraza, con cerramientos que dan todavía más amplitud a las estancias y que pueden ser utilizados como salón privado, zona de trabajo, gimnasio, etc.
El dormitorio principal dispone también de 2 amplios vestidores, además de otro entre ambos, junto a 2 cuartos de baño en suite. Todo un lujo para la comodidad más exquisita.
También se ofrece un dormitorio para personal de servicio, con cuarto de baño y zona de lavado y planchado.
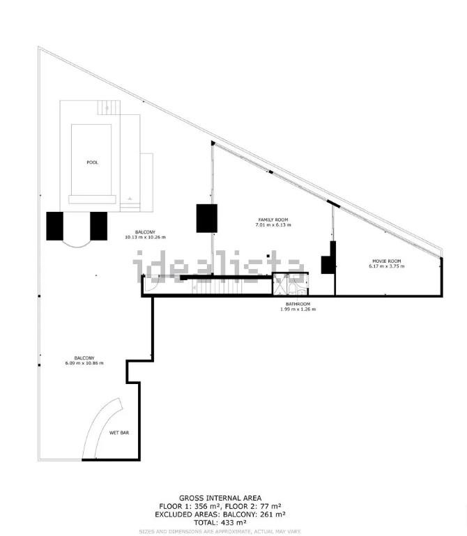
PLANTA SUPERIOR- Esta planta alberga un amplio comedor, sala de cine y cuarto de baño, si bien, podría destinarse a un apartamento totalmente independizado de la planta principal. El exterior es impresionante, con una magnífica piscina climatizada privada, zona de hamacas, bar y chillout. Todo lo necesario para disfrutar, en cualquier momento del día o de la noche, del aire libre y unas maravillosas vistas del centro de Madrid.
El piso se vende con 3 plazas de aparcamiento y 3 cuartos trasteros y las zonas comunes cuentan con una piscina, gimnasio, conserje físico y seguridad las 24 horas del día.





