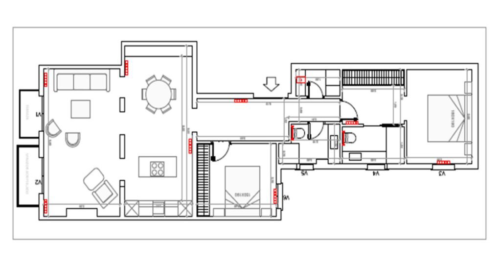
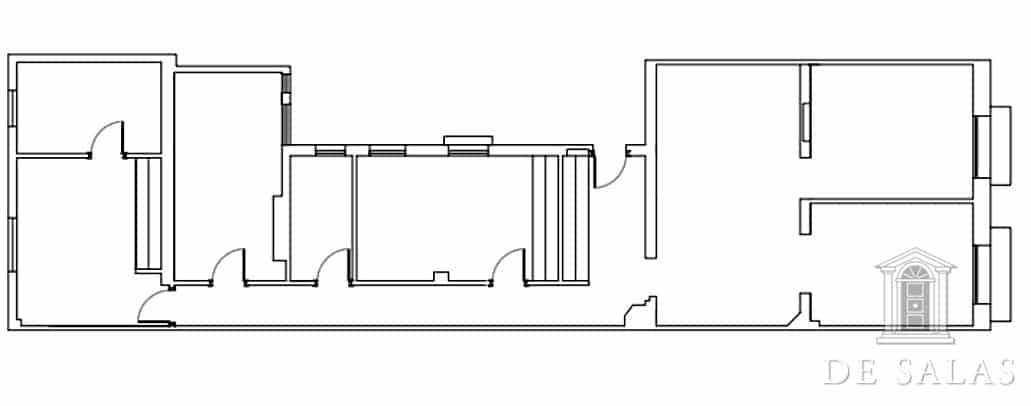
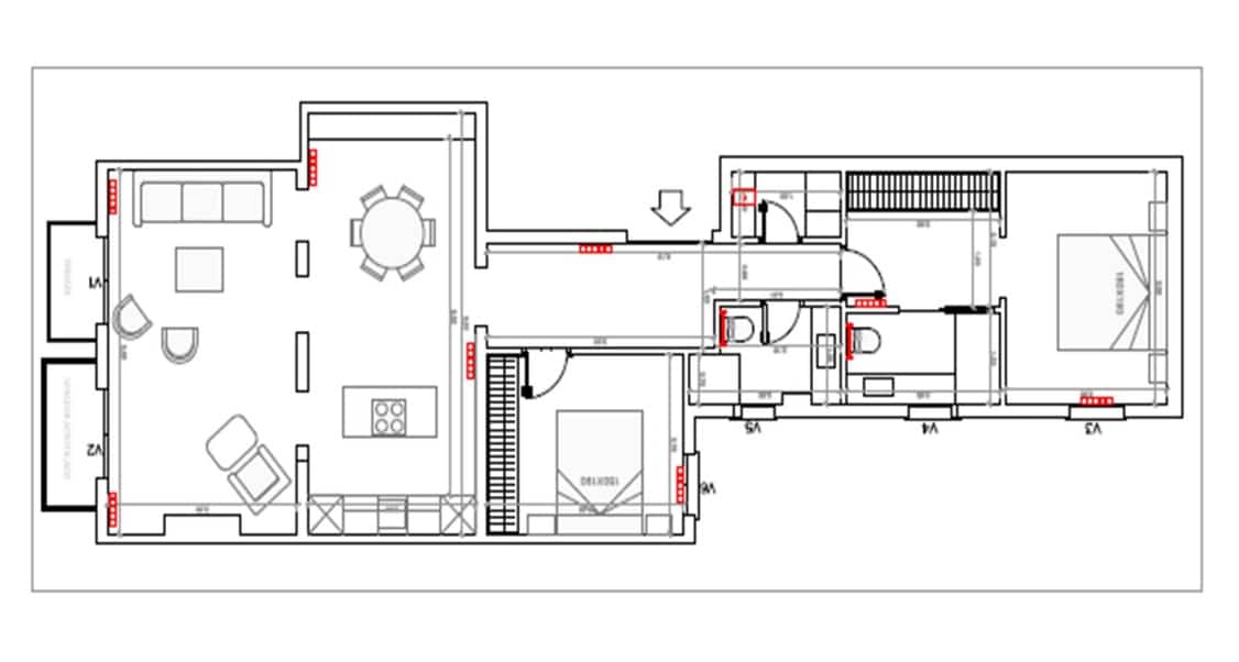
De Salas presenta está magnífica propiedad para reforma integral en Goya. La vivienda está situada en una 3º planta exterior con 2 balcones clásicos a la calle y cuenta con 181 m2 construidos. La propiedad tiene excelentes posibilidades de distribución para diseñar una vivienda de tres dormitorios con dos baños en suite, más otro baño completo que de servicio a invitados y al tercer dormitorio. Amplio salón comedor, con dos huecos a la calle y cocina integrada. La finca es clásica con portal de la época. En los planos adjuntos se muestra una propuesta de reforma y también estado actual de la propiedad.
Excelente propiedad para reformar en Goya
Características
Extras
- a reformar
- balcón
- calefacción individual
- orientación oeste
- trastero
Descripción
Llámenos al
Inmuebles similares



