Les presentamos un moderno y funcional bajo con jardín de 323m², que se componen de un piso bajo de 190 m2 con una terraza y jardín privado de 90m2, más dos plazas de garaje y trastero. Es de reciente construcción y su estado y diseño es impecable. Sus estancias son amplias y la luz natural es una de sus características a destacar además que el edificio fue premiado por su arquitectura y diseño eco-vanguardista respetando el medio ambiente.
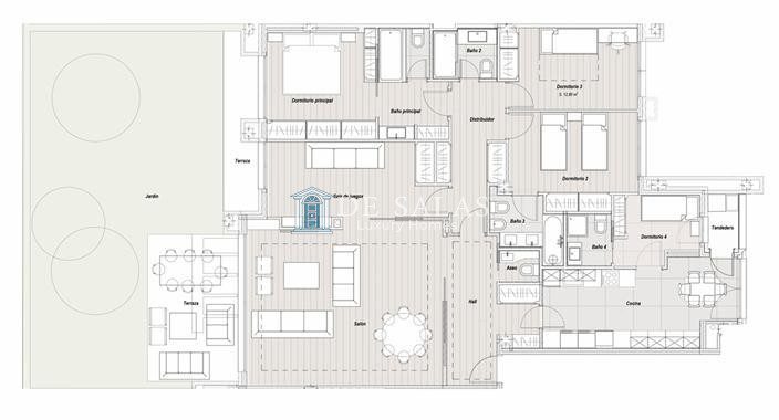
Con una distribución muy confortable nos recibe un amplio salón comedor con salida a su fantástica terraza y jardín, también dispone de sala de estar y aseo de invitados. La cocina tiene una agradable zona de office.
La zona más privada de la casa nos ofrece tres agradables y luminosos dormitorios todos con sus baños en suite y armarios empotrados elegantemente vestidos. Además se dispone de zona de servicio con un cuarto de servicio y baño.
DISTRIBUCIÓN
– Salón comedor
– Porche y jardín privado (90 m2)
– Sala de estar o despacho
– 3 Dormitorios y 3 baños (Todos en suite) (Dormitorio principal de 14 m2 y baño de 7 m2), (2 Dormitorios de 12,50 m2)
– Cocina con office
– 1 Dormitorio de servicio y baño
– Garaje: 2 plazas y trastero
– Calefacción de gas natural por suelo radiante y aire acondicionado por conductos
– Domótica
– Persianas de seguridad
URBANIZACIÓN
– Piscina y seguridad las 24 horas














