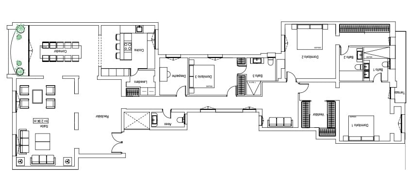
DE SALAS CONSULTORES INMOBILIARIOS presenta este fantástico piso totalmente exterior para reforma integral, con muchas posibilidades de reforma, el piso se encuentra en Calle de Villanueva, con mas de 180 m2 y dos balcones exteriores, dispone de techos altos y una estupenda distribución para hacer un estupendo apartamento con tres dormitorios y tres baños completos. El edificio es de 1900
Es luminoso gracias a su orientación Sur. Dispone de conserje.
Estupendo Apartamento para reformar en Recoletos
2.350.000€
Características
Dormitorios: 3
Baños: 3
No tiene piscina
No tiene garaje
Superficie: 187m²
Planta: 1
Zona: Recoletos
Extras
- a reformar
- ascensor
- exterior
- luminoso
Descripción
Agendar visita MCV00094
Llámenos al
Casas en la misma zona…
Venta
Recoletos
1.790.000
2
2
105m²







