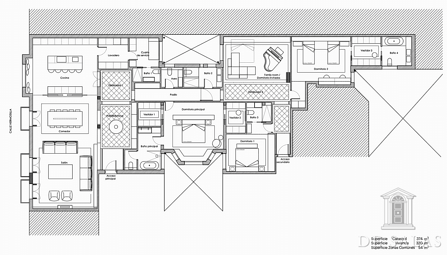
De Salas inmobiliaria presenta esta maravillosa propiedad para reforma integral, exclusiva en la calle Hermosilla, en pleno Recoletos, la vivienda se encuentra en una finca clásica que destaca por su elegancia y distinción. Con tres balcones exteriores, una ventana mirador y techos de tres metros de altura, ofrece vistas panorámicas y una gran cantidad de luz natural. Su orientación norte y sur, junto con sus dos accesos a la vivienda, permiten una distribución funcional y adecuada. Además, la vivienda se encuentra en una zona con alta demanda y limitada disponibilidad, lo que garantiza una inversión segura y rentable.
La zona, conocida por su alta calidad de vida, ofrece una amplia gama de servicios y comodidades de lujo, incluyendo restaurantes de alta gama, boutiques de diseñadores y galerías de arte. Además, la propiedad está cerca de puntos de interés cultural y turístico, como el Parque del Retiro y el Museo del Prado.
Se ofrece tambien el Proyecto de reforma por 590.000€ mas del precio de venta.
Las fotos son renders de posibilidades de la propiedad.







